Логотип ABViewer

ABViewer

ABViewer - универсальная программа для работы с САПР-чертежами и 3D-моделями. Программа разработана на собственном CAD- и 3D-ядре, что делает полностью независимым от сторонних западных компонентов и любых третьих сторон. Поддержка большого числа популярных форматов, широкий функционал программы, маленький размер и быстрая установка делает ее наиболее востребованной программой инженеров, конструкторов, проектировщиков. Просмотр, редактирование, конвертация, измерение, печать 2D-чертежей; просмотр и конвертация 3D-моделей и растровых изображений; построение сечений 3D-моделей для просмотра внутренней структуры; генерация G-кода из DWG/DXF для станков с ЧПУ. Кроме того, в программе возможна многостраничная и пакетная печать, конвертирование группы файлов, сравнение файлов. 
Понятный интерфейс, доступная техническая поддержка и бесплатный ознакомительный период позволяет протестировать программу полностью.

от 3 750 руб.

Финальная цена зависит от конфигурации
  • Поддержка форматов DWG, PDF
  • Входит в ЕРРП Да
  • Операционная система Linux, Windows, macOS
Этапы
Проектирование, Строительство
Для кого
Проектировщики, строители, инженеры, конструкторы

Поддержка 3D
Да

Какие задачи решает ABViewer

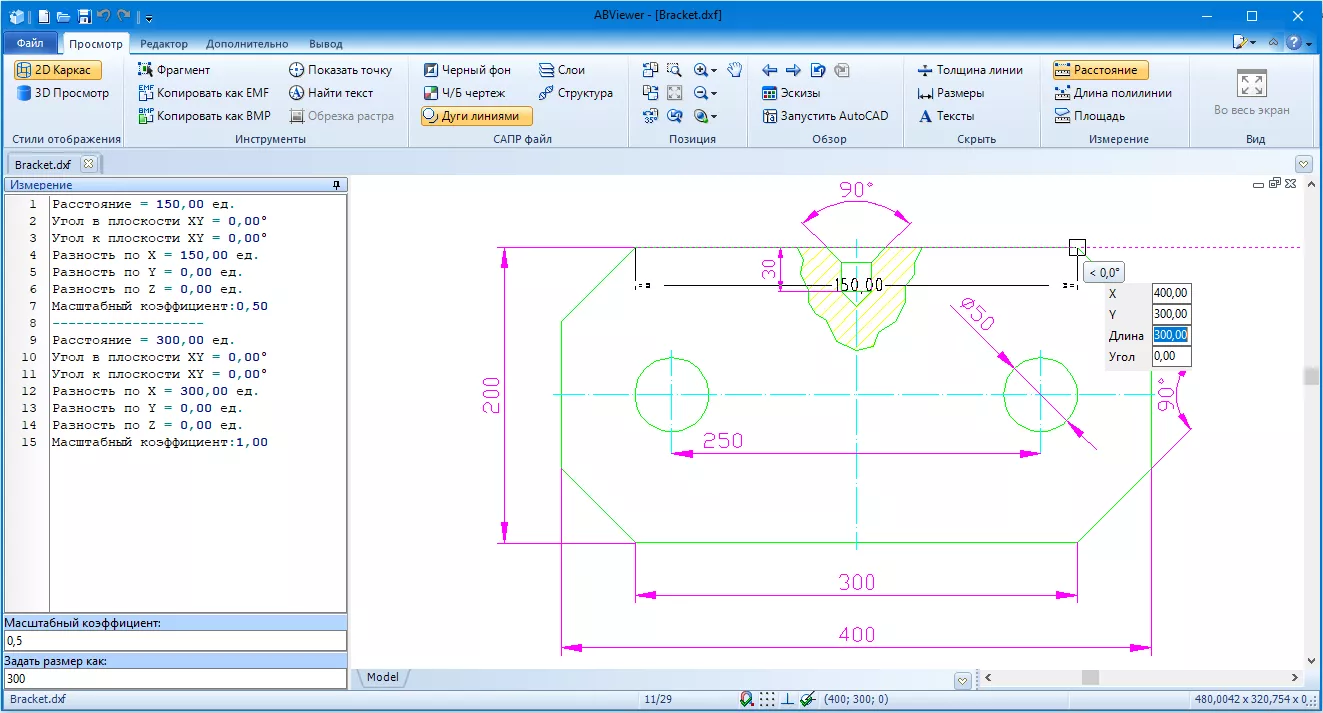
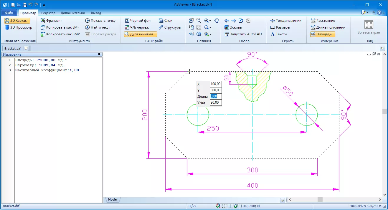
просмотр, редактирование, конвертация, измерение, печать 2D‑чертежей

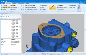
просмотр и конвертация 3D‑моделей и растровых изображений

построение сечений 3D‑моделей для просмотра внутренней структуры

генерация G‑кода из DWG/DXF для станков с ЧПУ

возможна многостраничная и пакетная печать, конвертирование группы файлов, сравнение файлов

Появились вопросы по продукту?

наши специалисты помогут разобраться

Системные требования

ОС
Microsoft Windows Vista/7/8/8.1/10/11, Microsoft Windows Server 2008/2012/2016/2019/2022, Linux с установленным Wine

Язык
Мультиязычный

Размер
45
Дата выпуска
Сентябрь 2000

Дата изменения
20.02.2023
Версия
15.1.0.4

Галерея

ABViewer
ABViewer
+ 10

Стоимость ABViewer

Финальная цена зависит от конфигурации. Бессрочная лицензия программы ABViewer включает в себя бесплатную техническую поддержку и бесплатные обновления внутри основной версии.

Похожие продукты

PlantViewer 3D

ПлантЛинкер

Инструмент просмотра 3D‑моделей больших промышленных объектов

Vitro BIM Viewer

Vitro

Дополнительный модуль системы Vitro‑CAD для работы с IFC и RVT моделями в браузере. Создание моделей, их анализ и сравнение версий. Поэтапное добавление новых элементов в единый реестр замечаний Vitro‑CAD

IndorCAD BIM

ИндорСофт

Ключевой программный продукт компании «ИндорСофт» для сопровождения этапа проектирования объекта инфраструктуры в рамках жизненного цикла объекта

Аспро: Ландшафт 2.0

ООО «АСПРО»

Готовый сайт для студий ландшафтного дизайна. Помогает презентовать услуги по благоустройству, озеленению и проектированию участков. Стильный дизайн, тематический контент и гибкие настройки под конкретную студию

ABViewer: блог

Отзывы

Будь первым — оставь свой отзыв!

Поделитесь своим мнением о продукте и помогите другим пользователям сделать выбор

Войдите или зарегистрируйтесь, чтобы оставить отзыв